アクリル部品の精密加工事例
カブクの加工事例
アクリル微細精密加工
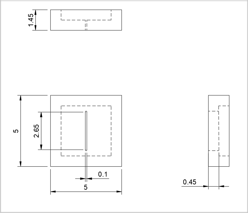
5mm角サイズの極小アクリル(透明)部品を高精度に加工した事例のご紹介です。
調達のご相談を頂いた部品は、中心部に0.2mm幅の溝加工を施されたアクリル部品。
中心の溝は本来0.1mm幅の溝加工を施したいがそれが無理なので0.2mm幅の溝を加工しているということでした。
詳しく状況を伺ったところ当時加工を依頼していた工場側の加工設備や治具の関係で0.1mmの溝加工をすることができなかったということがわかりました。
その点についてカブクでは工場側と連携して0.1mm幅の溝加工が可能な加工設備と治具を検討し、お客様に提案。結果、当初のご要望どおりの0.1mm幅の仕様を実現し、加工部品を調達、無事にお納めすることができました。


材 質 | アクリル(透明) |
---|---|
使用設備 | CNC |
サイズ | 5.00 x 5.00 x 1.45 (mm) |
特徴詳細 | 0.1mm溝部はt=0.45mm 溝幅:0.1mm→実測値0.097mm 価格:@7,200円(10個製作時) |
カブクはベテランの調達担当、各種加工経験者、機械設計者等多様な人材が部品調達をサポート。加工の実現性からみた調達コスト低減の提案、お客様の設計見直しのご支援等、お客様の最適な調達を強力に支援しています。